*RESERVIERT* Ein Zuhause mit Seele - wo Geschichte, Design und Natur harmonisch verschmelzen
Objektart
Adresse
Objektdaten
Informationen
Ausstattung
Details
Ein Zuhause mit Seele - wo Charakter und modernes Wohnen eins werden.
Dieses außergewöhnliche Einfamilienhaus ist weit mehr als nur ein Gebäude - es ist ein liebevoll gepflegtes Zuhause mit besonderem Charakter.
Vor rund zehn Jahren wurde hier mit viel Gespür für Details kernsaniert.
Das Ergebniss ist der unverwechselbare Charme klassischer Architektur und zeitgemäßer Wohnkomfort auf hohem Niveau.
Eingebettet in eine tolle Nachbarschaft und in erhöhter Hanglage gelegen, bietet dieses Haus ein Zuhause für Familien, Paare mit Anspruch oder Menschen, die das Besondere suchen.
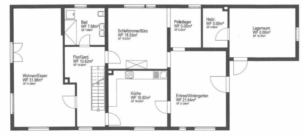
Schon der Eingangsbereich empfängt Sie wie ein stilvolles Entrée - hell, offen und einladend. Der Dielenbereich begeistert mit der aufwendig aufgearbeiteten originalen Holztreppe sowie den erhaltenen Fliesen, die dem Haus seinen authentischen Charakter verleihen. Alt und Neu verschmelzen hier auf wunderbare Weise.
Das Herzstück des Hauses bildet der lichtdurchflutete Wohnbereich mit geöltem dunklem Holzboden, massiven Holztüren und einem zusätzlichen Holzofen, der an kalten Tagen für wohlige Wärme und Atmosphäre sorgt. Große Fensterflächen schaffen eine offene Verbindung zur Natur.
Die hochwertige, maßgefertigte Einbauküche mit Kochinsel lässt keine Wünsche offen und öffnet sich direkt zur Holzterrasse - ein Ort für Frühstück mit grandiosem Blick ins Tal und lange Abende im Freien.
Das Badezimmer präsentiert sich als wahrer Badetempel: großzügig, modern und hochwertig ausgestattet mit begehbarer XXL-Dusche.
Der Waschmaschinenanschluss ist clever und nahezu unsichtbar integriert.
Ein großes helles Zimmer bietet vielfältige Nutzungsmöglichkeiten - ideal als Schlafzimmer oder Home-Office im Erdgeschoss.
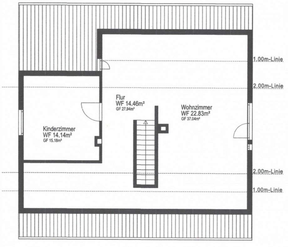
Das ausgebaute Dachgeschoss ist ein echtes Highlight:
offen gestaltet, lichtdurchflutet, mit sichtbaren Holzbalken und einer beeindruckenden Designer-Fensterfront.
Liebevolle Details wie ein aus einem alten Lattenrost gestalteter Treppenlauf und indirekte Beleuchtung unterstreichen den individuellen Charakter.
Zudem besteht hier noch Potenzial für den Ausbau einer traumhaften Dachterrasse.
Ein weiteres Zimmer kann je nach Bedarf genutzt werden.
Das Haus ist teilweise unterkellert.
Die naturbelassenen Steinwände und Böden sorgen für ein ideales Klima zur Kühlung von Lebensmitteln.
Der terrassenförmig angelegte Garten fügt sich harmonisch in die Hanglage ein, ist bewusst naturbelassen gestaltet und bietet mit Gewächshaus und Hochbeeten Raum für Selbstversorgung und Entspannung.
Vier Garagen gehören zum Anwesen, davon zwei nutzbar für den Fuhrpark. Die weiteren dienen ideal als Lager- oder Stellfläche.
Durch die Grenzbebauung ist zudem ein ehemaliger Stadel erhalten geblieben - perfekt als Werkstatt oder Holzlager nutzbar.
Beheizt wird das Haus über eine moderne Pelletheizung mit Solarthermie zur Warmwasserbereitung und als heizungsunterstützendes Wärmesystem.
Ein Haus, das berührt.
Ein Blickfang - wie aus einem "Schöner Wohnen"-Buch.
Ein Zuhause für Menschen, die Individualität, Qualität und Atmosphäre schätzen.
Hinweis: Einige der dargestellten Fotos wurden zur besseren Darstellung der Immobilie digital aufbereitet.
Das steckt drin:
-Ursprungsbaujahr 1926
-Vor ca. 10 Jahren kernsaniert
-Sanierung auf gehobenem KfW (85) -Standard
-Stufenlose Gestaltung des Erdgeschosses ermöglicht komfortables Wohnen auch im Alter
-Weiße Kunststofffenster mit guter Wärmedämmung
-Moderne Pelletheizung mit großem Vorratslager als nachhaltige Alternative zu fossilen Energieträgern
-Solarthermie zur Warmwasserbereitung und/oder als heizungsunterstützendes Wärmesystem.
-Zusätzlicher Holzofen im Wohnbereich
-Hochwertige, lichtdurchflutete Einbauküche mit Kochinsel
-Geölter dunkler Holzboden in den Wohnräumen
-Massive Holztüren im Innenbereich
-Erhalt und Aufbereitung der originalen Holztreppe
-Stilvoll aufgearbeitete historische Fliesen im Dielenbereich
-Großzügiges Badezimmer mit begehbarer XXL-Dusche
-Waschmaschinenanschluss elegant integriert
-Holzterrasse mit direktem Zugang von der Küche
-Ausgebautes Dachgeschoss mit sichtbaren Holzbalken
-Designer-Fensterfront und indirekte Beleuchtung
-Ausbaupotenzial für Dachterrasse und weiteres Zimmer
-Teilunterkellert mit naturbelassenen Steinwänden und Böden
Terrassenförmig angelegter, naturnaher Garten mit Gewächshaus & Hochbeeten in organischer und natürlicher Gestaltung
4 Garagen, davon 2 als Stellplätze nutzbar, 2 als Lager-/Abstellfläche
Ehemaliger Stadel / Werkstatt mit Holzvorrat
Der charmante Ortsteil Schießen gehört zur Gemeinde Roggenburg im Landkreis Neu-Ulm im Regierungsbezirk Schwaben, Bayern.
Schießen liegt idyllisch in der sanften Landschaft Mittelschwabens, etwa 2 km nordnordöstlich des Kernorts Roggenburg, und ist durch die Kreisstraße NU 2 verkehrsgünstig verbunden.
Durch den Ort fließt der malerische Osterbach, der das Ortsbild und die Umgebung angenehm prägt.
Der Ort ist geographisch eingebettet in eine reizvolle Naturkulisse mit landwirtschaftlichen Flächen, Wiesen und sanften Hügeln, die typisch sind für das Donau-Iller-Land - ruhig, grün und ländlich geprägt.
Schießen bietet eine familienfreundliche Infrastruktur, darunter unter anderem eine örtliche Kindertageseinrichtung sowie örtliche Vereine und Gemeinschaftseinrichtungen.
Durch die zentrale Lage im Städtedreieck zwischen Ulm (ca. 30 km) und Memmingen (ca. 40 km) lässt sich sowohl die kulturelle Vielfalt als auch die wirtschaftliche Infrastruktur der Region gut erreichen - ohne auf die Ruhe und Lebensqualität eines ländlichen dörflichen Lebens verzichten zu müssen.
Schießen zeichnet sich durch eine starke Dorfgemeinschaft, lebendige Traditionen und ein harmonisches Miteinander aus - ideal für Familien und alle, die naturnah wohnen möchten, ohne auf kurze Wege zu wichtigen Zielen der Region verzichten zu müssen.
Es liegt ein Energiebedarfsausweis vor.
Dieser ist gültig bis 22.10.2035.
Endenergiebedarf beträgt 98.90 kwh/(m²*a).
Wesentlicher Energieträger der Heizung ist Pellet.
Das Baujahr des Objekts lt. Energieausweis ist 1928.
Die Energieeffizienzklasse ist C.
Hier ist "schöner wohnen" in Vollendung erlebbar - eine echte Rarität auf dem Markt.
So selten findet man ein Zuhause, das Schönheit, Seele und Charakter in dieser Vollkommenheit vereint. Ein Ort zum Ankommen, Durchatmen und Verlieben.
Besonders hervorzuheben ist auch die außergewöhnlich angenehme Nachbarschaft: Die direkte Nachbarschaft ist ausgesprochen freundlich, hilfsbereit und jederzeit unterstützend. Auch im weiteren Umfeld begegnet man sich offen und herzlich - ein kurzer Plausch über den Gartenzaun gehört hier ebenso zum Alltag wie ein respektvolles Miteinander. Im Viertel wird Gemeinschaft gelebt, etwa bei gemeinsamen Gartenfesten oder traditionellen Treffen wie dem Neujahr-Anspielen.
Der Garten selbst ist als pflegeleichter Permakultur-Garten angelegt und bietet eine wunderbare Verbindung aus Natur, Genuss und Selbstversorgung. Ein größerer Bereich ist für den Anbau von Gemüse als Selbstversorgergarten vorgesehen. Im übrigen Garten wachsen überwiegend Nutzpflanzen: Esskastanie, verschiedene Zwetschgen- und Pflaumenbäume, unterschiedliche Sorten von Äpfeln und Birnen, Himbeeren, mehrere Johannisbeer-Sorten, Quitten, Weinreben, Mispel und Kornelkirschen - ein Paradies für Gartenliebhaber und alle, die frische Ernte direkt aus dem eigenen Garten schätzen.
Mehrere liebevoll angelegte Sitzbereiche verteilen sich über das gesamte Grundstück und laden dazu ein, den Garten zu verschiedenen Tageszeiten zu genießen. Gerade im Sommer findet man hier immer ein angenehmes Plätzchen - ob in der Sonne oder im wohltuenden Schatten.
Erleben Sie dieses besondere Haus bei einer persönlichen Besichtigung - denn manche Dinge lassen sich nicht erklären, nur fühlen.
Gerne begleiten wir Sie mit Kompetenz auch bei der Finanzierung und freuen uns darauf, gemeinsam mit Ihnen Ihren Wohntraum Wirklichkeit werden zu lassen.
Wir freuen uns auf die Vereinbarung eines gemeinsamen Termins.
Energieausweis (Bedarfsausweis)
98,90 kWh / (m²*a) Endenergiebedarf
98,90 kWh / (m²*a) Endenergiebedarf
98,90 kWh / (m²*a) Endenergiebedarf
Weitere Informationen
| Wesentlicher Energieträger | Pellet |
| Energieausweis gültig bis | 2035-10-22 |
| Energieausweis Jahrgang | ab dem 1.5.2014 |
| Energieausweis Werteklasse | C |
| Energieausweis Baujahr | 1928 |
| Energieausweis Gebäudeart | Wohngebäude |
| Heizung | Zentralheizung |
| Befeuerung | Pellet |
Ich bin damit einverstanden, dass mir Karten von Google angezeigt werden. Es gelten die Datenschutzbedingungen von Google (https://policies.google.com/privacy).
Ich bin einverstanden