Wohnen mit Freiraum: Großzügige Wohnung über 2 Etagen im OG und DG mit Balkon & vielen Möglichkeiten
Objektart
Adresse
Objektdaten
Informationen
Ausstattung
Details
Großzügiges Wohnen mit viel Raum für Ihre Lebensideen - über 150 m² auf zwei Ebenen in ruhiger Lage von Fischach
In angenehmer und ruhiger Wohnlage von Fischach, nur wenige Schritte von der Schule entfernt, erwartet Sie diese außergewöhnlich großzügige Wohnung, die sich über das Ober- und Dachgeschoss erstreckt.
Mit rund 150 m² Wohnfläche bietet sie ein Zuhause für Menschen, die Wert auf Platz, Flexibilität und ein angenehmes Wohngefühl legen - ideal für Familien, Paare mit Raumbedarf oder auch für individuelles Wohnen und Arbeiten unter einem Dach.
Bereits der Zugang zur Wohnung überzeugt:
Über das Erdgeschoss gelangen Sie in einen großzügigen Windfang, der ausreichend Platz für Garderobe, Schuhe und Stauraum bietet und Sie freundlich empfängt. Von hier aus führt eine massive Holztreppe hinauf in das Obergeschoss.
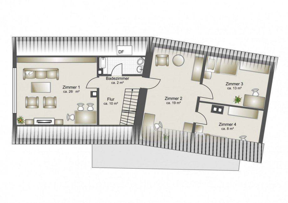
Im Obergeschoss eröffnet sich Ihnen ein durchdacht gestalteter Grundriss mit vielfältigen Nutzungsmöglichkeiten.
Neben einem Badezimmer und einem separaten WC stehen Ihnen mehrere Räume zur Verfügung, die flexibel als Wohn-, Schlaf- oder Arbeitsbereiche genutzt werden können.
Die mögliche großzügige Wohnküche lässt sich ganz nach Ihren persönlichen Vorstellungen gestalten und einrichten und wird schnell zum Mittelpunkt des täglichen Lebens.
Ein besonderes Highlight ist der schöne Balkon, der zum Verweilen einlädt und Ihnen einen ruhigen Rückzugsort im Freien bietet.
Über eine weitere Holztreppe gelangen Sie in das Dachgeschoss, das zusätzlichen Raum für Ihre individuellen Wohnideen bereithält.
Drei weitere Zimmer eröffnen vielfältige Nutzungsmöglichkeiten - sei es als Kinderzimmer, Büro oder Gästebereich.
Auch hier besteht die Möglichkeit, eine weitere Wohnküche zu integrieren, da entsprechende Anschlüsse bereits vorhanden sind.
Ein kleines Badezimmer mit Badewanne ergänzt diesen Bereich.
Das großzügige Dachstudio mit ca. 26 m² schafft eine ganz besondere Atmosphäre und eignet sich hervorragend als Wohnzimmer, Atelier oder persönlicher Rückzugsort.
Die Wohnung überzeugt nicht nur durch ihre Größe, sondern auch durch ihre Flexibilität - sie bietet Raum für verschiedenste Lebenskonzepte, ob als Familienwohnung, Mehrgenerationenlösung oder für die Kombination aus Wohnen und Arbeiten.
Zwei Außenstellplätze stehen Ihnen ebenfalls zur Verfügung und runden das Angebot komfortabel ab.
Bitte beachten Sie, dass sich die Wohnung im Hochwassergebiet von Fischach befindet. Die entsprechenden Gegebenheiten werden transparent kommuniziert und individuell mit den zukünftigen Mietern abgestimmt.
Da die Wohnung nicht separat abgeteilt ist, erfolgt die Abrechnung der Neben- und Stromkosten in gemeinsamer Absprache - eine faire und verbrauchsorientierte Lösung.
Diese Immobilie richtet sich an zuverlässige und sympathische Mieter, die ein langfristiges Zuhause mit viel Platz und zahlreichen Möglichkeiten zu schätzen wissen.
Das steckt drin:
-Parkett- und Laminatböden
-Kunststofffenster
-Ölzentralheizung mit solarer Unterstützung und Wärmepumpe
-großer Balkon
-2 Außenstellplätze inkl.
Hinweis zu den Nebenkosten:
Die Nebenkostenabrechnung erfolgt individuell in Absprache mit den Mietern - abhängig von Verbrauch, Personenanzahl und Wohnfläche.
Bei den angegebenen Werten handelt es sich um unverbindliche Angaben, da derzeit keine belastbaren Verbrauchszahlen vorliegen.
In eigener Sache:
Ein Teil der Bilder wurde mithilfe moderner Technik dezent aufbereitet und möbliert, um Ihnen eine Vorstellung der Gestaltungsmöglichkeiten zu geben.
Die Wohnung befindet sich in ruhiger und familienfreundlicher Lage in Fischach, einem beliebten Markt im Landkreis Augsburg. Die Umgebung ist geprägt von einer angenehmen Wohnstruktur mit viel Grün und einer guten Nachbarschaft.
Fischach bietet eine sehr gute Infrastruktur für den täglichen Bedarf. Einkaufsmöglichkeiten, Bäcker, Ärzte sowie weitere Dienstleistungen sind bequem erreichbar. Besonders hervorzuheben ist die Nähe zu Kindergarten und Schule, was die Lage ideal für Familien macht.
Die Uniklinik Augsburg ist in ca. 20 Autominuten erreichbar, ebenso die Autobahn A8, wodurch eine sehr gute regionale Anbindung gegeben ist. Ein Bahnanschluss befindet sich im nahegelegenen Gessertshausen, von wo aus regelmäßige Verbindungen in Richtung Augsburg und Ulm bestehen.
Ein besonderes Highlight ist das Naturfreibad in unmittelbarer Nähe, das quasi "vor der Haustüre" liegt und in den Sommermonaten einen hohen Freizeitwert bietet.
Für weitere Erholung sorgen zahlreiche Möglichkeiten in der Umgebung - ob Spaziergänge, Radfahren oder Aktivitäten in der Natur. Die reizvolle Landschaft des Naturparks Augsburg - Westliche Wälder lädt zu vielfältigen Outdoor-Aktivitäten ein.
Insgesamt vereint die Lage ruhiges Wohnen im Grünen mit einer gleichzeitig guten Erreichbarkeit aller wichtigen Einrichtungen des täglichen Lebens.
Es liegt ein Energiebedarfsausweis vor.
Dieser ist gültig bis 22.3.2036.
Endenergiebedarf beträgt 177.60 kwh/(m²*a).
Wesentlicher Energieträger der Heizung ist Öl.
Das Baujahr des Objekts lt. Energieausweis ist 1970.
Diese besondere und außergewöhnlich großzügige Wohnung ist weit mehr als nur ein Ort zum Wohnen - sie bietet Raum für Leben, Entfaltung und viele schöne Momente.
Die Eigentümer wünschen sich Mieter, die dieses Zuhause ebenso zu schätzen wissen, und freuen sich auf ein langfristiges, vertrauensvolles Mietverhältnis.
Wenn Sie auf der Suche nach einem Ort sind, an dem Sie wirklich ankommen können, könnte dies genau das Richtige für Sie sein.
Bitte stellen Sie Ihre Anfragen ausschließlich per E-Mail.
Wir freuen uns sehr darauf, Ihnen diese tolle Wohnung persönlich zeigen zu dürfen.
Energieausweis (Bedarfsausweis)
177,60 kWh / (m²*a) Endenergiebedarf
177,60 kWh / (m²*a) Endenergiebedarf
177,60 kWh / (m²*a) Endenergiebedarf
Weitere Informationen
| Wesentlicher Energieträger | Öl |
| Energieausweis gültig bis | 2036-03-22 |
| Energieausweis Jahrgang | ab dem 1.5.2014 |
| Energieausweis Baujahr | 1970 |
| Energieausweis Gebäudeart | Wohngebäude |
| Heizung | Zentralheizung |
| Befeuerung | Öl |
Ich bin damit einverstanden, dass mir Karten von Google angezeigt werden. Es gelten die Datenschutzbedingungen von Google (https://policies.google.com/privacy).
Ich bin einverstanden